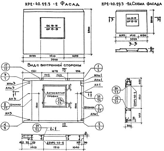
НР2-40.29.3-2

Чертеж изделия:
Чертеж НР2-40.29.3-2
Характеристики изделия:
ПараметрЗначение
Длина3995 мм
Ширина300 мм
Высота2900 мм
Масса3690 кг
Нормативный документСерия 1.132-1

НР2-40.29.3-2   Наружная стеновая панель рядовая по Серии 1.132-1.